js-photo / Fotolia



Mit dem innovativen Hebe-Schiebetürsystem PremiDoor 76 eröffnen Sie sich völlig neue Gestaltungsmöglichkeiten für Ihr Zuhause. Großzügige Glasflächen von bis zu 6,50 Meter Breite und 2,60 Meter Höhe schaffen einen fließenden Übergang zwischen Innen- und Außenbereich – ob Gartenidylle oder urbane Aussicht. So genießen Sie mehr Tageslicht und ein offenes Wohngefühl.
Das barrierefreie System überzeugt durch seine einfache Handhabung sowie eine sehr gute Wärmedämmung, die Heizkosten senkt und für ein angenehmes Raumklima sorgt. Egal ob Neubau oder Sanierung – PremiDoor 76 ist die passende Lösung für moderne Wohnkonzepte.
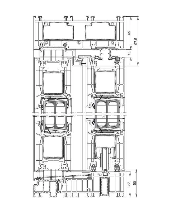
Mit schlanken Profilansichten (nur 179 mm Bautiefe) und einer Fünfkammer-Konstruktion ermöglicht das System hohe Verglasungsstärken bis zu 50 mm. Der Uf-Wert von 1,4 W/(m²K) sorgt bereits im Standard für exzellente Energieeffizienz. Das bodengleiche, barrierefreie Schwellenprofil gewährleistet zudem hohen Bedienkomfort.
Darüber hinaus kann PremiDoor 76 flexibel auf Ihre Sicherheitsanforderungen angepasst werden – bis zur Widerstandsklasse RC 2 – und bietet somit verlässlichen Schutz.
Vielfältige Farb- und Dekorvarianten – von klassischem Weiß über Holzstrukturen bis hin zu Metallic-Tönen – ermöglichen eine individuelle Gestaltung Ihrer neuen Hebe-Schiebetür. Sie können die Profile außen farbig folieren lassen und innen weiß belassen oder beidseitig folieren.
Fazit:
Nachhaltigkeit steht bei Kömmerling im Fokus: Die Profile werden umweltbewusst aus bleifreiem PVC mit Calcium/Zink-Stabilisatoren gefertigt und enthalten recycelte Materialien. Mit PremiDoor 76 treffen Sie somit eine bewusste und nachhaltige Wahl für Ihr Zuhause.
PremiDoor 76 – Ihr Weg zu mehr Licht, Komfort und Sicherheit.






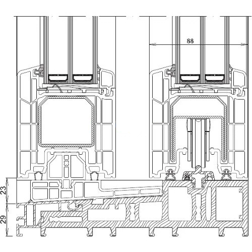
Die PremiDoor 88 ist eine komplett neu entwickelte Hebe-Schiebetür, die höchsten Bedienkomfort mit herausragender Energieeffizienz und ästhetischer Eleganz vereint. Mit modernster Dichtungstechnologie, die auf drei dichtenden Ebenen basiert, bietet sie exzellenten Schlagregenschutz, Winddichtigkeit und effektiven Schallschutz.
Der aktuelle Architekturtrend verlangt nach großen, rahmenlosen Glasflächen und maximaler Transparenz – gleichzeitig steigen die Anforderungen an Energieeinsparung und Dämmung. PremiDoor 88 erfüllt beides perfekt: Das innovative 88 mm Profilsystem garantiert dank großer Bautiefe hohe Stabilität, hervorragende Dämmwerte und ermöglicht den Einsatz von Gläsern bis zu 56 mm, inklusive spezieller Funktionsgläser.
Auch bei Design und Individualisierung setzt PremiDoor 88 Maßstäbe. Ob klassisches Weiß, moderne Holzoptiken, Unifarben oder trendige Metallic-Töne – das vielfältige Farbsortiment erlaubt eine passgenaue Umsetzung Ihrer architektonischen Vorstellungen. So finden Sie garantiert die optimale Farb- und Materialkombination für Ihr Zuhause oder Ihr Projekt.
Nachhaltigkeit ist für Kömmerling selbstverständlich: Das System wird aus bleifreiem PVC mit umweltfreundlichen Calcium/Zink-Stabilisatoren gefertigt und enthält recycelte Materialien. So bieten wir nicht nur modernste Technik und Design, sondern auch eine umweltbewusste Lösung für zukunftsfähiges Bauen.



FN Fensterbau GmbH
Magirus-Deutz-Straße 12 | 89077 Ulm
Ulm mobil: 0163-8769357
info@fensterbau-ulm.de