js-photo / Fotolia




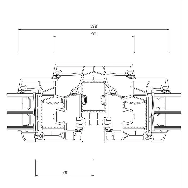
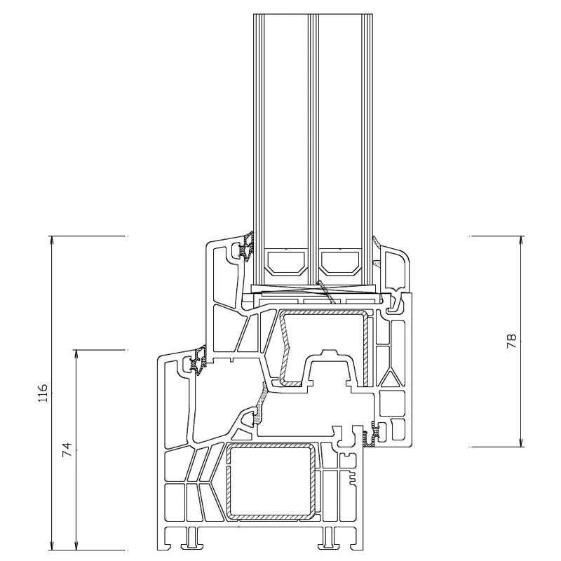
Das Kömmerling 76 Mitteldichtungssystem vereint alle Anforderungen moderner Fenstertechnik in einem durchdachten Gesamtkonzept. Mit seiner 6-Kammer-Geometrie und einer Bautiefe von 76 mm überzeugt es durch ausgezeichnete Dämmwerte, hohe Energieeffizienz sowie zeitgemäßes Design. Die klar strukturierten Profilproportionen ermöglichen eine harmonische Integration in unterschiedlichste Architekturstile – von klassisch bis modern.
Die innovative Profilkonstruktion erlaubt den Einsatz moderner 3-fach-Verglasungen oder Funktionsgläser bis zu 50 mm Stärke. Bereits in der Standardversion erfüllt das System die Anforderungen für den Einsatz in Niedrigenergiehäusern mit einem Uf-Wert von bis zu 1,0 W/(m²K). Die effektive Mitteldichtungsebene verbessert nicht nur die Wärme- und Schalldämmung, sondern sorgt auch für optimalen Schutz gegen Witterungseinflüsse.
Gestaltungsfreiheit bietet das umfassende Profilsortiment mit verschiedenen Flügelausführungen (flächenversetzt und halbflächenversetzt) sowie eine breite Farbpalette: von klassischem Weiß über Holzdekore und Unifarben bis hin zu metallischen Tönen – einseitig oder beidseitig foliert. Zusätzlich ist das System in 26 proCoverTec-Farbtönen verfügbar – eine innovative Oberflächenbeschichtung für langlebige Ästhetik und erhöhten Schutz.<br /
Mit Kömmerling AcrylColor steht darüber hinaus eine besonders widerstandsfähige, farbechte Lösung zur Verfügung. Die farbige PMMA-Oberfläche (Polymethylmethacrylat) wird thermisch mit dem Profil verschmolzen und bildet eine extrem robuste, kratzfeste Schutzschicht. Das seidenmatte Finish verleiht dem Fensterprofil eine edle Optik und ist gleichzeitig pflegeleicht sowie nahezu wartungsfrei.
Kömmerling setzt als Vorreiter der Branche konsequent auf umweltschonende Materialien: Die Profile werden bleifrei mit Stabilisatoren auf Calcium-Zink-Basis gefertigt. Darüber hinaus fließen Rezyklate aus kontrollierten Rückführsystemen in die Produktion ein. Damit erfüllt Kömmerling höchste ökologische Standards und unterstützt nachhaltiges Bauen im Sinne internationaler Zertifizierungen.
Für ein Referenzfenster 1230 x 1480 mm, mit 4T/18ar/4/18ar/4T Verglasung Ug=0,5 Multitech Black [48mm].
Mit Kömmerling 76 Mitteldichtung erhalten Sie ein zukunftssicheres Fenstersystem, das Energieeffizienz, Designvielfalt, Montagefreundlichkeit und Nachhaltigkeit in idealer Weise miteinander verbindet – für mehr Wohnqualität und architektonische Freiheit.





FN Fensterbau GmbH
Magirus-Deutz-Straße 12 | 89077 Ulm
Ulm mobil: 0163-8769357
info@fensterbau-ulm.de